Дом по адресу Новосибирск, Новосибирский район, за 6800000 р.

Адрес Новосибирск, Новосибирский район, поселок Двуречье, Юбилейная улица
Цена 6 800 000 р.
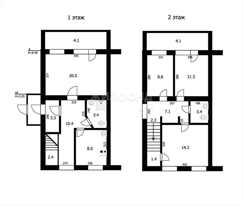
Площадь дома 96,5 м2, участка 8,9 м2
1/2 дома по ул. Юбилейная. Общей площадью: 96.50 кв.м. Мечтаете жить в своем доме, но с удобствами квартиры! Это Ваш вариант! Здесь Вам будут обеспечены тишина и покой загородной жизни + комфорт. Предлагаем Вашему вниманию двухуровневую, 4-х комнатную квартиру с большим земельным участком. Квартира в доме классической кирпичной кладки. Летом прохладно, зимой очень тепло. В квартире две просторные лоджии. Общая площадь вместе с лоджиями 104,7 кв.м. 1 этаж: прихожая, кухня, гостиная, с двумя окнами, что делает ее необыкновенно светлой, санузел. 2 этаж: коридор, три спальни, в одной из спален своя гардеробная, санузел. Высокие потолки. Все коммуникации центральные: отопление, вода, канализация. В собственности участок 9 соток, ровный, солнечный, ухоженный. Баня, металлический гараж, погреб, подпол, теплица, хозпостройки. Магазины, детский садик, остановка школьного автобуса, остановка общественного транспорта - в шаговой доступности. В 10 минутах ходьбы жд ст Крахаль. Подходит под все виды расчёта. Просмотр в удобное время, звоните, смотрите, покупайте! Возможен обмен на вашу недвижимость. Возможна продажа в рассрочку. При звонке, пожалуйста, сообщите номер варианта - JV008054152985
Объявление № 22989622
Дата подачи:
22 июля 2025 г. 7:36
Дата обновления:
22 июля 2025 г. 7:36
Просмотров 19 Хотите продать быстрее?

Продавец
Анна Борисовна
Показать номер телефона
Пожаловаться
Комментарии:
Добавить